312 Colburn Avenue Victoria Point QLD 4165
312 Colburn Avenue Victoria Point QLD 4165
Active
House
For Sale
Property Features
6
Bedrooms
5
Car Spaces
2,050
Land Size (m²)
Property Description
Overview
Rare 2,050 m² Development Parcel with Commercial & Residential Potential in Victoria Point
Detailed Description
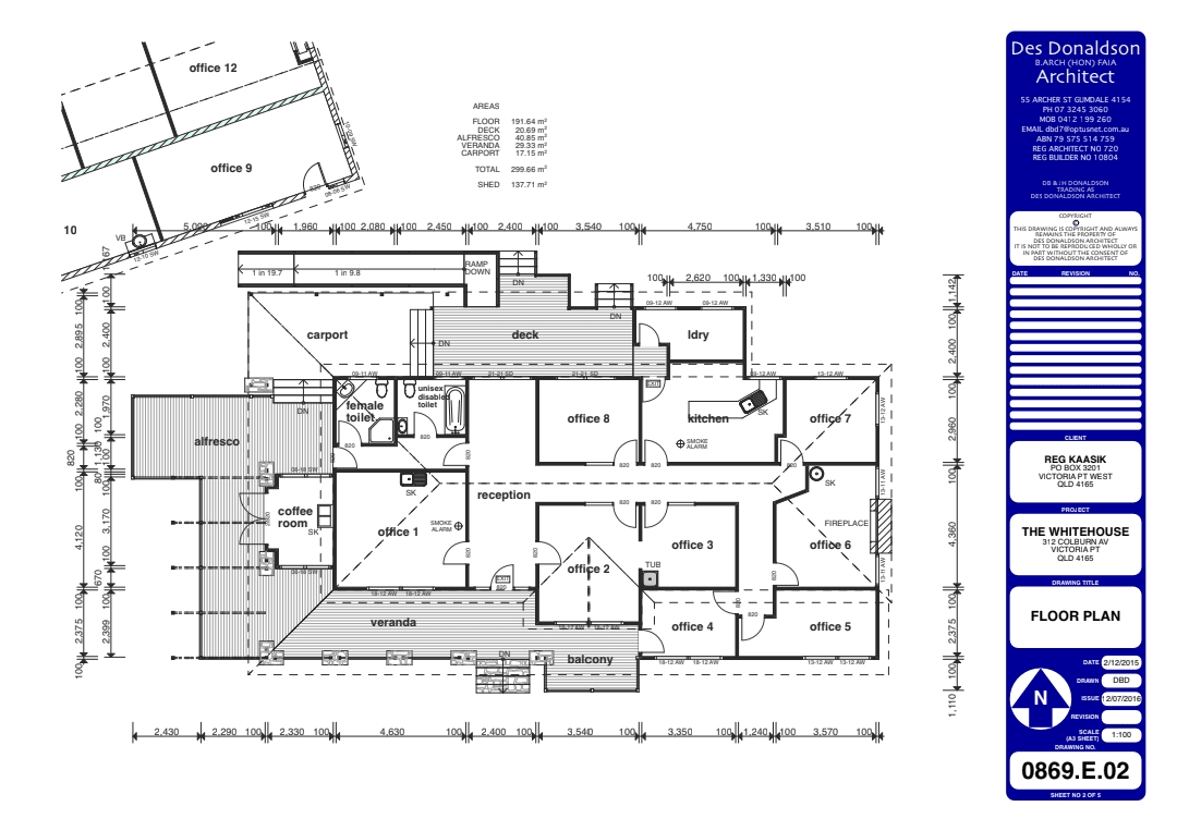
Positioned in one of Victoria Point’s most sought-after growth corridors, this 2,050 m² freehold parcel offers both secure holding income and outstanding future development potential. With a tenanted commercial building already in place and medium-density residential zoning, the options here are vast.
✨ Key Features
Land Size: Expansive 2,050 m² allotment with excellent exposure.
Existing Building: Approx. 447 m² of floor area currently tenanted, providing reliable cash flow.
Parking: 14 on-site car spaces.
Income Potential: Strong holding income with solid annual returns.
Zoning Advantage: Medium-density residential with potential for mixed-use or residential development (STCA).
📍 Location Benefits
Situated in the heart of Victoria Point, a fast-growing coastal suburb in Redland City.
Close to shopping centres, schools, parks, and public transport.
Strong local demand for both residential and commercial development.
🌟 Why This Property Stands Out
This is a rare chance to secure a large landholding with immediate income and long-term growth potential. Perfect for developers, builders, or investors looking to capitalise on Victoria Point’s expansion, this property offers flexibility, location, and strong returns in one complete package.
✨ Key Features
Land Size: Expansive 2,050 m² allotment with excellent exposure.
Existing Building: Approx. 447 m² of floor area currently tenanted, providing reliable cash flow.
Parking: 14 on-site car spaces.
Income Potential: Strong holding income with solid annual returns.
Zoning Advantage: Medium-density residential with potential for mixed-use or residential development (STCA).
📍 Location Benefits
Situated in the heart of Victoria Point, a fast-growing coastal suburb in Redland City.
Close to shopping centres, schools, parks, and public transport.
Strong local demand for both residential and commercial development.
🌟 Why This Property Stands Out
This is a rare chance to secure a large landholding with immediate income and long-term growth potential. Perfect for developers, builders, or investors looking to capitalise on Victoria Point’s expansion, this property offers flexibility, location, and strong returns in one complete package.
Contact Agent
Thomas Dannis
Property Agent
Property Summary
Property Type:
House
Category:
For Sale
Status:
Active
Bedrooms:
6
Car Spaces:
5
Land Size:
2,050m²
Listed:
Aug 25, 2025
